ГОСТ 26314-98
МЕЖГОСУДАРСТВЕННЫЙ СТАНДАРТ
ТРАПЫ СУДОВЫЕ СТАЦИОНАРНЫЕ
Технические условия
МЕЖГОСУДАРСТВЕННЫЙ
СОВЕТ
ПО СТАНДАРТИЗАЦИИ, МЕТРОЛОГИИ И СЕРТИФИКАЦИИ
Минск
Предисловие
1 РАЗРАБОТАН Украинским научно-исследовательским институтом стандартизации и сертификации в судостроении (УкрГОСНИИСС), Техническим комитетом по стандартизации ТК 15
ВНЕСЕН Государственным комитетом стандартизации, метрологии и сертификации Украины
2 ПРИНЯТ Межгосударственным Советом по стандартизации, метрологии и сертификации (протокол № 14 от 12 ноября 1998 г.)
За принятие проголосовали:
|
Наименование государства |
Наименование национального органа по стандартизации |
|
Азербайджанская Республика |
Азгосстандарт |
|
Республика Армения |
Армгосстандарт |
|
Республика Беларусь |
Госстандарт Республики Беларусь |
|
Республика Казахстан |
Госстандарт Республики Казахстан |
|
Российская Федерация |
Госстандарт России |
|
Республика Таджикистан |
Таджикгосстандарт |
|
Туркменистан |
Главгосслужба «Туркменстандартлары» |
|
Республика Узбекистан |
Узгосстандарт |
|
Украина |
Госстандарт Украины |
3 Постановлением Государственного комитета Российской Федерации по стандартизации и метрологии от 8 августа 2001 г. № 324-ст межгосударственный стандарт ГОСТ 26314-98 введен в действие непосредственно в качестве государственного стандарта Российской Федерации с 1 января 2002 г.
4 ВЗАМЕН ГОСТ 26314-84
ГОСТ 26314-98
МЕЖГОСУДАРСТВЕННЫЙ СТАНДАРТ
|
ТРАПЫ СУДОВЫЕ СТАЦИОНАРНЫЕ Технические условия Stationary ships ladders. Specifications |
Дата введения 2002-01-01
Настоящий стандарт распространяется на судовые стационарные трапы (далее - трапы) и ступеньки скоб-трапов, устанавливаемые на надводных судах и плавсредствах.
Стандарт не распространяется на местные и специальные трапы и трапы, встроенные в корпусные конструкции.
Требования настоящего стандарта являются обязательными.
В настоящем стандарте использованы ссылки на следующие стандарты:
ГОСТ 9.014-78 Единая система защиты от коррозии и старения. Временная противокоррозионная защита изделий. Общие требования
ГОСТ 26.020-80 Шрифты для средств измерений и автоматизации
ГОСТ 380-94 Сталь углеродистая обыкновенного качества. Марки
ГОСТ 503-81 Лента холоднокатаная из низкоуглеродистой стали. Технические условия
ГОСТ 3242-79 Соединения сварные. Методы контроля качества
ГОСТ 3282-74 Проволока стальная низкоуглеродистая общего назначения. Технические условия
ГОСТ 4784-97 Алюминий и сплавы алюминиевые деформируемые. Марки
ГОСТ 5264-80 Ручная дуговая сварка. Соединения сварные. Основные типы, конструктивные элементы и размеры
ГОСТ 6009-74 Лента стальная горячекатаная. Технические условия
ГОСТ 9109-81 Грунтовка ФЛ-03 К и ФЛ-03 Ж.. Технические условия
ГОСТ 12707-77 Грунтовки фосфатирующие. Технические условия
ГОСТ 14192-96 Маркировка грузов
ГОСТ 14771-76 Дуговая сварка в защитном газе. Соединения сварные. Основные типы, конструктивные элементы и размеры
ГОСТ 14806-80 Дуговая сварка алюминия и алюминиевых сплавов в инертных газах. Соединения сварные. Основные типы, конструктивные элементы и размеры
ГОСТ 15102-75 Контейнер универсальный металлический закрытый номинальной массой брутто 5,0 т. Технические условия
ГОСТ 15150-69 Машины, приборы и другие технические изделия. Исполнения для различных климатических районов. Категории, условия эксплуатации, хранения и транспортирования в части воздействия климатических факторов внешней среды
ГОСТ 18477-79 Контейнеры универсальные. Типы, основные параметры и размеры
ГОСТ 24597-81 Пакеты тарно-штучных грузов. Основные параметры и размеры
ГОСТ 24643-81 Основные нормы взаимозаменяемости. Допуски формы и расположения поверхностей. Числовые значения
ГОСТ 29329-92 Весы для статического взвешивания. Общие технические требования.
3.1. Типы и исполнения трапов и ступенек скоб-трапов должны соответствовать таблице 1.
Таблица 1
Наименование
Конструкция ступенек
Исполнение
1
Наклонный трап
Фланцевая
1-ф
1-2ф
Решетчатая
1-р
Непрерывная
1-н
Двухпрутковая
1-дп
Трехпрутковая
1-тп
1-2тп*
2
Вертикальный трап
Однопрутковая
2-п
2-2п*
Двухпрутковая
2-дп
2-2дп*
Трубчатая
2-т
3
Ступенька скоб-трапа
Прутковая
3-п
3-2п
Трубчатая
3-т
* Конструкторская документация для исполнений 1-2тп, 2-2п, 2-2дп разрабатывается по заявкам предприятий.
3.2. Трапы исполнений 1-ф, 1-2ф и 1-р могут изготовляться с подшивкой и без подшивки.
3.3. Основные параметры и размеры трапов должны соответствовать рисункам 1 - 10 и таблицам 2 - 8.
1 - тетива; 2 - ступенька; 3 - подшивка
Рисунок 1 - Тип 1, исполнения 1-ф, 1-2ф, 1-р
Таблица 2
Размеры в миллиметрах
![]()
В
Н
l
Масса 1 м стального трапа, кг
без подшивки
с подшивкой
1-ф
50°
600
1000 - 3120
200 - 240
42,0
54,0
800
1000 - 3250
51,0
63,0
1000
1400 - 3360
60,0
72,0
1-р
55°
600
1000 - 3120
42,0
50,0
800
1000 - 3120
43,5
51,5
1-ф
600
520 - 3600
45,0
54,0
800
800 - 3600
51,0
63,0
60°
600
720 - 3570
240 - 255
43,0
52,0
800
1440 - 3070
49,5
61,0
600
720 - 3070
15,0*
18,0*
800
1920 - 3070
19,0*
22,0*
65°
500
640 - 2680
250 - 270
29,0
35,0
70°
670 - 2830
14,5
17,0*
1-2ф
670 - 2560
6,7
7,8*
* Трапы из алюминиево-магниевого сплава - для судов, не поднадзорных Морскому Регистру судоходства (классификационному обществу).

Масса 1 м стального трапа - 62,0 кг
1 - тетива; 2 - ступенька
Рисунок 2 - Тип 1, исполнение 1-н

1 - тетива; 2 - ступенька
Рисунок 3 - Тип 1, исполнение 1-дп
Таблица 3
Размеры в миллиметрах
|
Исполнение трапа |
|
Н |
l |
Масса 1 м стального трапа, кг |
|
1-дп |
60° |
1110 - 3560 |
245 |
38,8 |
|
3805 - 4295 |
47,2 |
|||
|
70° |
2560 - 2830 |
270 |
34,3 |

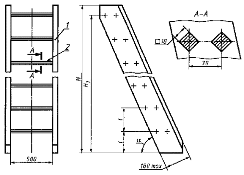
1 - тетива; 2 - ступенька
Рисунок 4 - Тип 1, исполнения 1-тп, 1-2тп
Таблица 4
Размеры в миллиметрах
|
Исполнение трапа |
а |
H |
H1 |
Масса 1 м стального трапа, кг |
|
1-тп |
18 |
580 |
510 |
41,0 |
|
835 |
765 |
|||
|
1090 |
1020 |
|||
|
1345 |
1275 |
|||
|
1600 |
1530 |
|||
|
1855 |
1785 |
|||
|
2110 |
2040 |
|||
|
2365 |
2295 |
|||
|
2620 |
2550 |
|||
|
2875 |
2805 |
|||
|
3130 |
3060 |
|||
|
3385 |
3315 |
|||
|
3640 |